Doppel- und Reihenhäuser als Kapitalanlage- klar strukturiert, technisch durchdacht.

KfW 40 QNG, reale Grundstücksteilung, Festpreis

Mit MICON beginnt ein neues Kapitel

Grundriss- und Konzeptplanung

Unsere Haustypen sind standardisiert geplant und für eine langfristige Nutzung ausgelegt.
Im Fokus stehen klare Raumfolgen, praktische Nebenflächen und eine wirtschaftliche Flächennutzung.

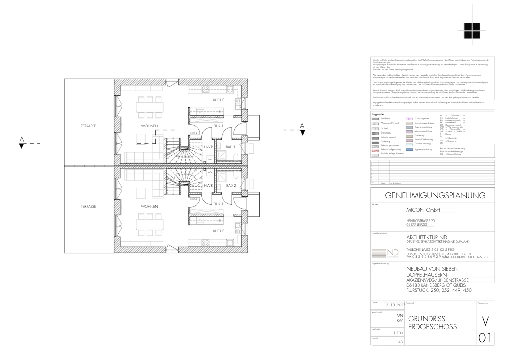
Typischerweise verfügen die Einheiten über vier Zimmer, ein Hauptbad im Obergeschoss sowie ein zusätzliches Gäste-WC oder Gästebad im Erdgeschoss.
Ergänzt werden die Grundrisse durch einen offenen Wohn- und Essbereich, einen Hauswirtschaftsraum sowie direkt zugeordnete Außenflächen.

Doppelhaushälften und Reihenhäuser unterscheiden sich in Struktur und baulicher Dichte, folgen jedoch denselben planerischen Grundprinzipien: funktionale Grundrisse, moderne Haustechnik und Umsetzung im Effizienzstandard KfW 40 QNG.

Die Grundstücke werden real geteilt.
Jede Einheit erhält ein eigenes Grundstück und ein separates Grundbuch. Die Grundstücksgrößen liegen – abhängig vom Projekt und Bebauungsplan – in der Regel zwischen ca. 220 m² und 450 m².

Festpreisgarantie

Angebot zu festen Preisen – keine
verdeckten Kosten.

Massivbauweise

Porenbeton, Mauerwerk oder Stahlbeton

Badausstattung

Hochwertige, langlebige deutsche
Markenprodukte der Firmen Grohe,
Villeroy & Boch etc.

Inklusive Grundstück

Das Grundstück ist Bestandteil des
Festpreises.

Luftwärmepumpe

Moderne und umweltschonende
Versorgung im gesamten Haus.

Elektrische Rollläden an allen Fenstern

Sicherheit und Bequemlichkeit auf
Knopfdruck.

Nur 40 % Primärenergiebedarf

im Vergleich zum GEG Referenzgebäude – QNG-zertifiziert

Fußbodenheizung

Wohlige Wärme im Erdgeschoss und
Obergeschoss.

Nachhaltigkeit

Photovoltaik inkl. Batterie und
Wallbox am Stellplatz

Nachhaltigkeit

Mit dem KfW-40-QNG-Standard erfüllen wir höchste Anforderungen an Energieeffizienz. Photovoltaikanlagen, Wärmepumpen und moderne Dämmtechnik sorgen für niedrige Betriebskosten und machen die Häuser nahezu CO₂-neutral.

Damit investieren Sie in Immobilien, die nicht nur heute attraktiv sind, sondern auch in einer nachhaltigen Zukunft bestehen.

Sicherheit während der Bauphase

Bei MICON erfolgt die Bauabwicklung nach klaren gesetzlichen Vorgaben. Zahlungen werden ausschließlich nach Baufortschritt fällig. Unabhängige Kontrollen und ein gesetzlicher Sicherheitseinbehalt sorgen für Transparenz und Schutz während der gesamten Bauphase.

Baubegleitung wichtiger Bauabschnitte durch einen Sachverständigen

Zahlungen nach Baufortschritt (MaBV)

5 % Sicherheitseinbehalt bis zur Endabnahme

QNG-Zertifizierung

Steuerliche Vorteile

Zahlen, die unsere Anleger überzeugen

Mit Neubauten im KfW-40-QNG-Standard nutzen Sie gezielt Fördermöglichkeiten und Abschreibungsmodelle.

Ihr Investment wird steuerlich wirksam und bleibt wirtschaftlich attraktiv.

Denn ein Teil Ihrer Steuerlast arbeitet dann für Sie, statt einfach zu verschwinden, wenn Sie in unsere energieeffizienten Neubauten investieren:

Sie kombinieren attraktive Abschreibungen mit nachhaltigen Renditen.

Und das BESTE:
Der Staat unterstützt Sie dabei, Wohnraum zu schaffen, der dringend gebraucht wird.

Für Sie bedeutet das kurz und bündig: geringere Steuerlast, höhere Liquidität und mehr Spielraum für neue Investitionen.

Sonderabschreibung nach § 7b EStG:

20 % innerhalb von 4 Jahren (4 × 5 %)!

Kombination aus Nachhaltigkeit & Förderung:

Energieeffizient bauen, steuerlich profitieren!

Degressive AfA:

Bis zu 5 % jährlich möglich!

Zeitliche Chance:

Neubauten bis 2029 sind förderfähig. Jetzt handeln!

Maximal förderfähige Baukosten:

4.000 €/m²

Keine CO₂-Abgabe:

Dank nachhaltiger Technik!

Einfach investieren

Mit minimalem Aufwand und maximaler Klarheit

Keine Eigentümergemeinschaft

Jede Einheit ist grundbuchlich eigenständig – keine WEG, keine Abhängigkeiten.

Kein Umlagen- oder Rücklagenzwang

Keine verpflichtenden Rücklagen oder gemeinschaftlichen Umlagen.

Direkte Mietabrechnung mit den Mietern

Versorger rechnen direkt mit den Mietern ab – reduzierter Verwaltungsaufwand.

Wenig Verwaltungsaufwand

Klare Eigentumsstruktur ohne WEG vereinfacht Verwaltung und Organisation.

Digitales MICON-Kundenportal zur vollen Übersicht

Zugriff auf Verträge, Pläne und Baufortschritt an einem Ort.

Das MICON-Kundenportal

Ihr digitaler Projektraum

Mit dem Micon Kundenportal stellen wir Ihnen eine sichere, digitale Plattform zur Verfügung, über die Sie jederzeit transparent und individuell betreut werden. Sie haben jederzeit einen Überblick über relevante Dokumente und neue Projekte.

Ob Baufortschritt, Dokumentenzugriff oder persönliche Kommunikation – über unser Portal auf Basis von Microsoft SharePoint erhalten Sie eine geschützte Online Umgebung mit strukturierten Informationen zu Ihrem Bauobjekt. Das Kundenportal wird Sie professionell durch alle Projektphasen begleiten.

So funktioniert das Kundenportal:
Individualisierte SharePoint Seite
Jeder Käufer erhält eine persönliche, geschützte SharePoint-Seite.

Diese ist individuell auf das jeweilige Bauvorhaben zugeschnitten und bildet die zentrale Anlaufstelle für alle Informationen, Dokumente und den aktuellen Projektstatus – jederzeit digital abrufbar.

Dokumentenablage

Zugriff auf alle relevanten Unterlagen:

  • Grundbuchauszug
  • notarielle Verträge
  • Finanzierungsbescheide
  • Zahlungsbestätigungen
  • Baugenehmigungen
  • Pläne und Schnitte
Baufortschritt und Fotodokumentation

Regelmäßige Updates inklusive Fotos und Statusberichte zu jedem Bauabschnitt

Aktuelle Hinweise und Termine
Wichtige Meilensteine, Fristen, Baubegehungen oder Übergabetermine auf einen Blick
Kommunikationsverlauf
Klassische persönliche Kontaktinformation, Ansprechpartner mit Rufnummer hinterlegt

Datenschutz & Sicherheit

DSGVO konform, Zugriff nur durch autorisierte Personen

Strukturierte Unterlagen

Alle Dokumente übersichtlich abgelegt und jederzeit abrufbar

Zeitersparnis

Kein lästiges Nachfordern – Sie sehen direkt, was verfügbar ist

Transparent und Vertrauen

Durch proaktive Kommunikation haben Sie Änderungen stets im Blick

Projektbegleitung

Lückenlose Dokumentation vom Kauf bis zur Übergabe

Self-Service

Viele Fragen klären sich direkt über den Zugriff – weniger Rückfragen beim Vertrieb nötig

Mobiler Zugriff

Auch per Smartphone oder Tablet bedienbar – ideal für unterwegs

Auf einen Blick: Das MICON-Konzept

Reale Grundstücksteilung

Jede Einheit verfügt über ein eigenes Grundstück und ein separates Grundbuch. Es besteht keine Wohnungseigentümergemeinschaft.

Klare Eigentums- und Verwaltungsstruktur

Keine WEG, kein Umlagen- oder Rücklagenzwang, einfache Bewirtschaftung.

Fester Kaufpreis inkl. Grundstück

Alle Projekte werden zu klar definierten Festpreisen angeboten.

Standardisierte, praxiserprobte Grundrisse

Typischerweise vier Zimmer, Hauptbad und zusätzliches Gäste-WC oder Gästebad, funktionale Raumaufteilung.

Energieeffiziente Bauweise

Umsetzung im Effizienzstandard KfW 40 QNG mit moderner Haustechnik (Wärmepumpe, Fußbodenheizung, Photovoltaik).

Langfristige Vermietbarkeit

Ausrichtung auf familiengerechten Wohnraum mit stabiler Nachfrage und geringer Fluktuation.

Gesetzlich geregelte Bauabwicklung

Zahlungen ausschließlich nach Baufortschritt gemäß MaBV, inklusive gesetzlichem Sicherheitseinbehalt.

Unabhängige Qualitätskontrolle

Begleitende Prüfung während der Bauphase, transparente Dokumentation.

Steuerliche Förderfähigkeit

Das Konzept erfüllt die baulichen Voraussetzungen für steuerliche Abschreibungsmodelle im Neubau. Eine individuelle steuerliche Prüfung wird empfohlen.

FAQs

Häufige Fragen.

Klare Antworten.

Warum eignet sich das MICON-Konzept für Kapitalanleger?

Das MICON-Konzept ist konsequent auf Kapitalanleger ausgerichtet. Im Fokus stehen eine klare Eigentumsstruktur, feste wirtschaftliche Rahmenbedingungen, einfache Verwaltung sowie eine langfristig stabile Vermietbarkeit. Ziel ist eine planbare, substanzorientierte Immobilieninvestition.

Was bedeutet reale Grundstücksteilung und warum ist das wichtig?

Jedes Haus steht auf einem real geteilten Grundstück und verfügt über ein eigenes Grundbuch. Es entsteht keine Wohnungseigentümergemeinschaft. Dadurch sind Verwaltung, Finanzierung, Verkauf und spätere Nutzung unabhängig und deutlich einfacher.

Welche Hausgrößen und Grundrisse sind typisch?
Die Häuser verfügen typischerweise über vier Zimmer, ein Hauptbad im Obergeschoss sowie ein zusätzliches Gästebad im Erdgeschoss. Die Grundstücksgrößen liegen – abhängig vom Projekt und Bebauungsplan – in der Regel zwischen ca. 220 m² und 450 m².
Für wen ist das MICON-Konzept gedacht?
Das Konzept richtet sich primär an Kapitalanleger. Die Häuser sind auf langfristige Vermietung, stabile Nachfrage und einfache Bewirtschaftung ausgelegt. Eine Eigennutzung ist grundsätzlich möglich, steht jedoch nicht im Fokus des Konzepts.
Wie läuft die Zahlung während der Bauphase ab?
Die Zahlungen erfolgen ausschließlich nach Baufortschritt gemäß den Vorgaben der Makler- und Bauträgerverordnung (MaBV). Zusätzlich wird ein gesetzlicher Sicherheitseinbehalt in Höhe von 5 % berücksichtigt.
Wie wird die Bauausführung kontrolliert?
Die Bauausführung wird durch einen unabhängigen Sachverständigen begleitet und geprüft. Baufortschritte werden kontrolliert und dokumentiert, bevor Rechnungen freigegeben werden. So wird sichergestellt, dass nur für tatsächlich erbrachte Leistungen gezahlt wird.
Welche steuerlichen Aspekte sind für Kapitalanleger relevant?
Die Neubauten erfüllen mit dem Effizienzstandard KfW 40 QNG die baulichen Voraussetzungen für steuerliche Abschreibungsmodelle im Neubau, wie z. B. Sonderabschreibungen oder die degressive AfA. Die konkrete steuerliche Nutzung ist von der individuellen Situation des Investors abhängig.
Wie hoch ist der laufende Verwaltungsaufwand?
Durch die reale Grundstücksteilung bestehen keine WEG-Strukturen, keine gemeinschaftlichen Umlagen und kein Rücklagenzwang. Versorger rechnen in der Regel direkt mit den Mietern ab, was den Verwaltungsaufwand deutlich reduziert.
Welche Mieter sprechen die Häuser typischerweise an?
Doppelhaushälften und Reihenhäuser sind vor allem für Familienhaushalte attraktiv. Diese Mietergruppe ist erfahrungsgemäß langfristig orientiert und weist eine vergleichsweise geringe Fluktuation auf. Zudem ist das Angebot an mietbaren Häusern dieser Art begrenzt.

Sie investieren in mehr als Häuser. Sie investieren in Qualität, Nachhaltigkeit und Zukunft.

Kontakt

Rufen Sie an

Schreiben Sie eine Mail

MICON vor Ort

MICON GmbH
Henricistraße 20
04177 Leipzig